Brachshammerweg 9, Gaimersheim - nur noch 1 Wohneinheit frei

Brachshammerweg 9, Gaimersheim - nur noch 1 Wohneinheit frei


  • Aktuell ist nur noch die Wohnung 12 frei
  • Neubau als KfW 40 KFN Gebäude
  • Darlehen über 100.000 € / Wohneinheit wurden gesichert, Zinsen zwischen 1,14%-2,11% je nach noch wählbarer Laufzeit
  • PV-Anlage samt Mieterstrommodell
  • E-Ladevorbereitung an allen PKW-Stellplätzen
  • Wärmepumpe
  • Lüftungsanlage mit Wärmerückgewinnung
  • Alle Bäder mit Fenster
  • Fußbodenheizung
  • Echtholzverlegeparkett

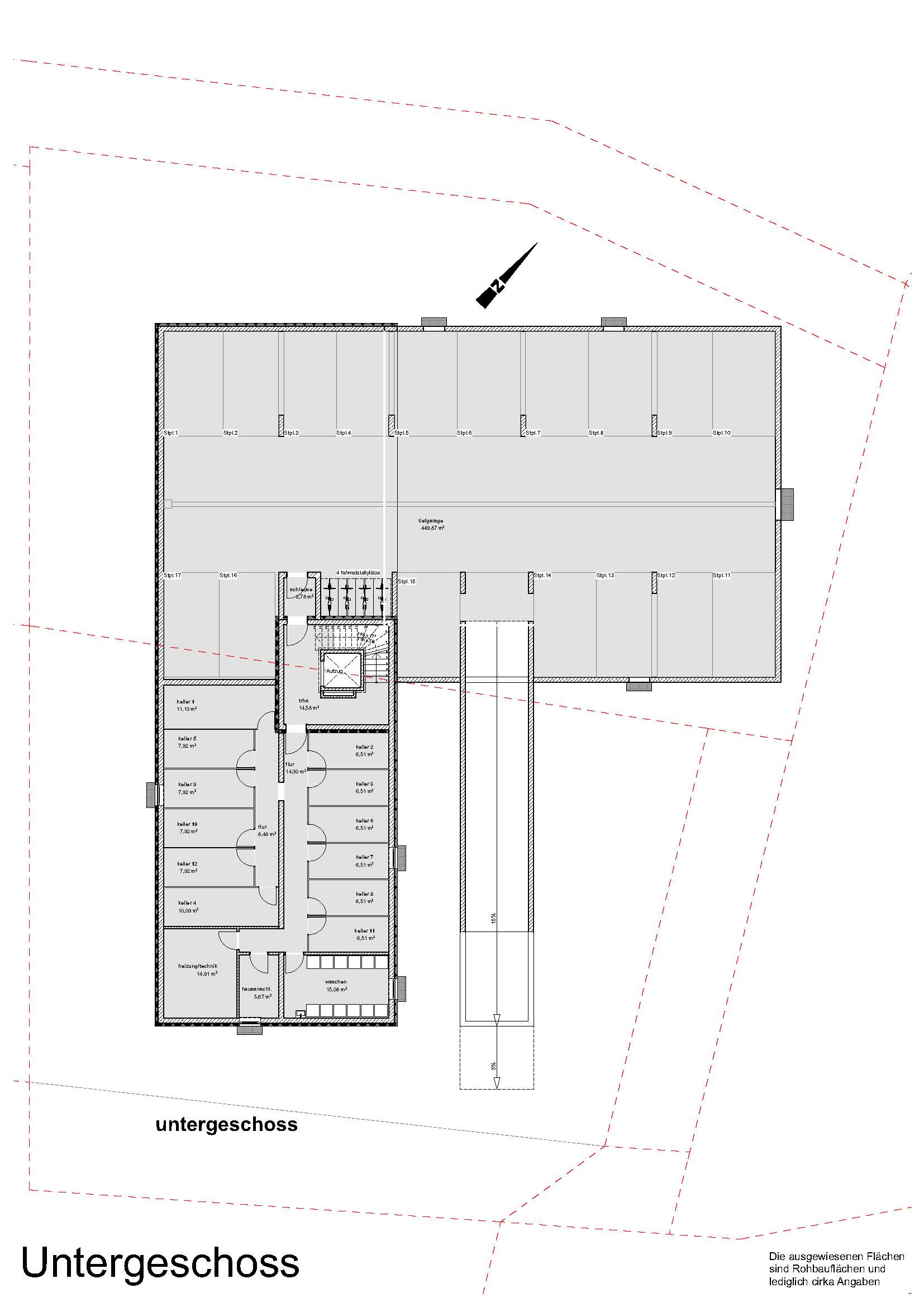
Plan - KG

Plan - EG

Plan - OG

Plan - DG